前 言
本标准代替 GB/T 9705—1988《文书档案案卷格式》。
本标准与 GB/T 9705—1988 相比主要变化如下:
——标准的总体编排和结构按 GB/T 1.1—2000进行了修改;
——增加了前言;
——修改了硬卷封面和封底尺寸、软卷皮封皮和封底尺寸、卷盒尺寸和卷内目录用纸尺寸;
——增加了“归档号”为硬卷皮卷脊项目;
——调整档案章项目,并增加档号章的填写要求。
本标准的附录A、附录B、附录C、附录D、附录E、附录F、附录G、附录H、附录I、附录J是规范性附录。
本标准由国家档案局提出并归口。
本标准起草单位:国家档案局、厦门市档案局。
本标准主要起草人:曹丽、宋扬、朱燕秋、丁德胜。
本标准于1988年9月5日首次发布。
正 文
1 范围
本标准规定了文书档案案卷格式的内容构成和基本方法。
本标准适用于按立卷方法整理档案的我国各级各类档案馆(室)和文书处理部门。
2 术语和定义
下列术语和定义适用于本标准。
2.1 文书档案 administrative archives
反映党务、行政管理等活动的档案。
2.2 案卷 file
由互有联系的若干文件组合成的档案保管单位。
3 案卷卷皮格式
文书档案案卷卷皮分两种,一种是硬卷皮,一种是软卷皮。
3.1 硬卷皮格式
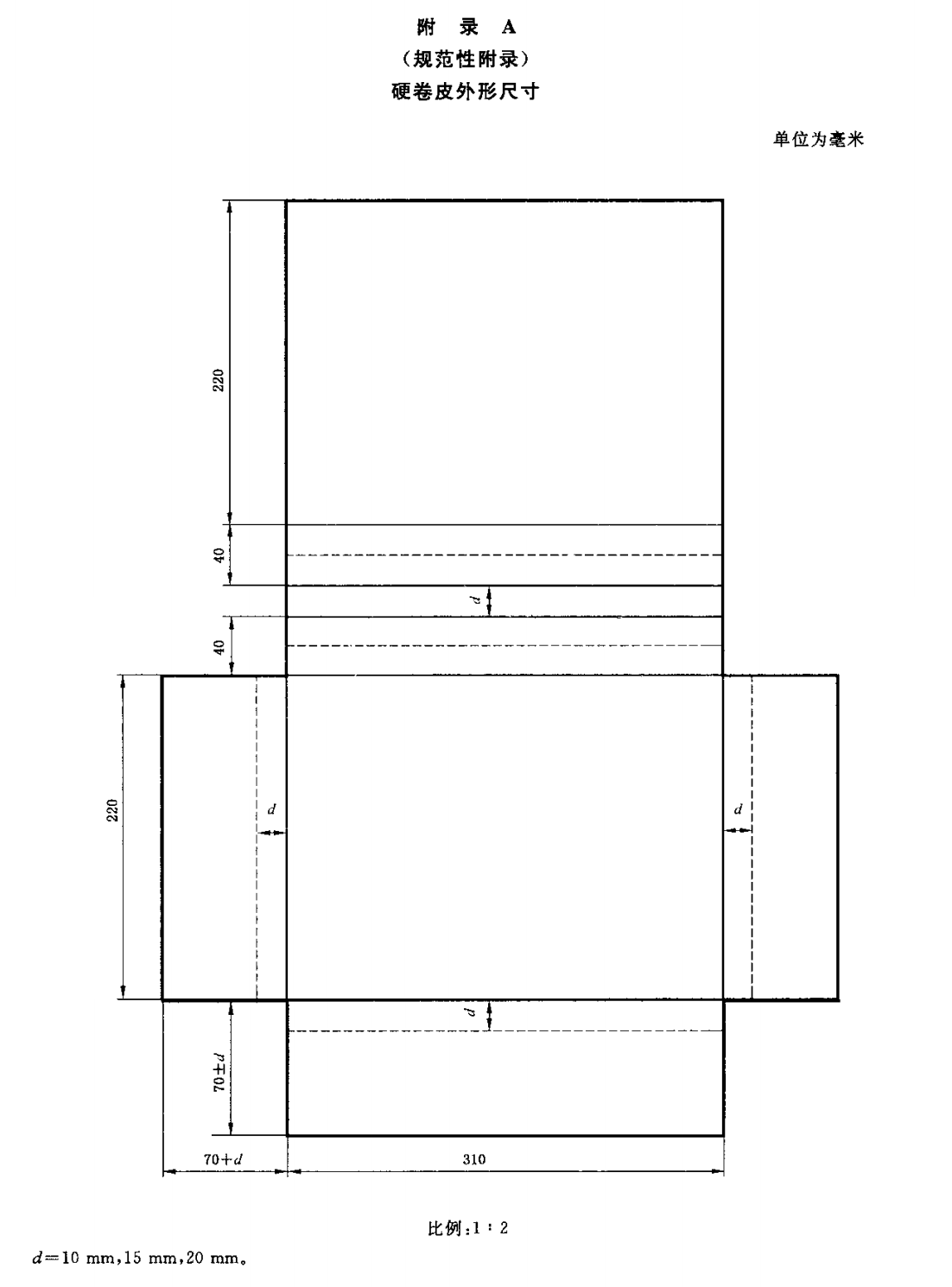
3.1.1 硬卷皮外形尺寸
封面尺寸规格采用310mm×220mm。
封底尺寸同封面尺寸。
封底三边(上、下、翻口处)要另有70mm宽的折叠纸舌。
卷脊可根据需要分别设10mm、15mm、20mm三种厚度。
用于成卷装订的卷皮,上、下侧装订处要各有20mm宽的装订纸舌(见附录A)。本标准推荐使用250g无酸牛皮纸制作案卷硬卷皮。
3.1.2 硬卷皮封面项目
封面项目包括:全宗名称、类目名称、案卷题名、时间、保管期限、件、页数、归档号、档号。各项目具体位置、尺寸见附录B。
3.1.3 封面项目的填写方法
3.1.3.1 全宗名称
全宗名称相同于立档单位的名称。填写全宗名称必须用全称或通用简称。如“中国共产党中央委员会”简称为“中共中央”;“中华人民共和国外交部”简称为“外交部”;“河北省人民政府人事局”简称为“河北省人事局”。不得简称为“本部”、“本委”、“本省人事局”等。
3.1.3.2 类目名称
类目名称指全宗内分类方案的第一级类目名称。在一个全宗内应按统一的方案分类,并应保持分类体系的稳定性。
3.1.3.3 案卷题名
案卷题名即案卷标题,一般由立卷人拟写。案卷题名应当准确概括本卷文件的主要制发机关、内容、文种。文字应力求简练、明确。
3.1.3.4 时间:卷内文件所属的起止年月。
3.1.3.5 保管期限:立卷时划定的案卷保管期限,一般由立卷人填写。
3.1.3.6 件、页数:装订的案卷要填写总页数,不装订的案卷要填写本卷的总件数。
3.1.3.7 归档号:填写文书处理号,由立卷人填写。
3.1.3.8 档号的编制
封面档号由全宗号、目录号、案卷号组成。
全宗号:档案馆指定给立档单位的编号。
目录号:全宗内案卷所属目录的编号,在同一个全宗内不允许出现重复的案卷目录号。
案卷号:目录内案卷的顺序编号,在同一个案卷目录内不允许出现重复的案卷号。
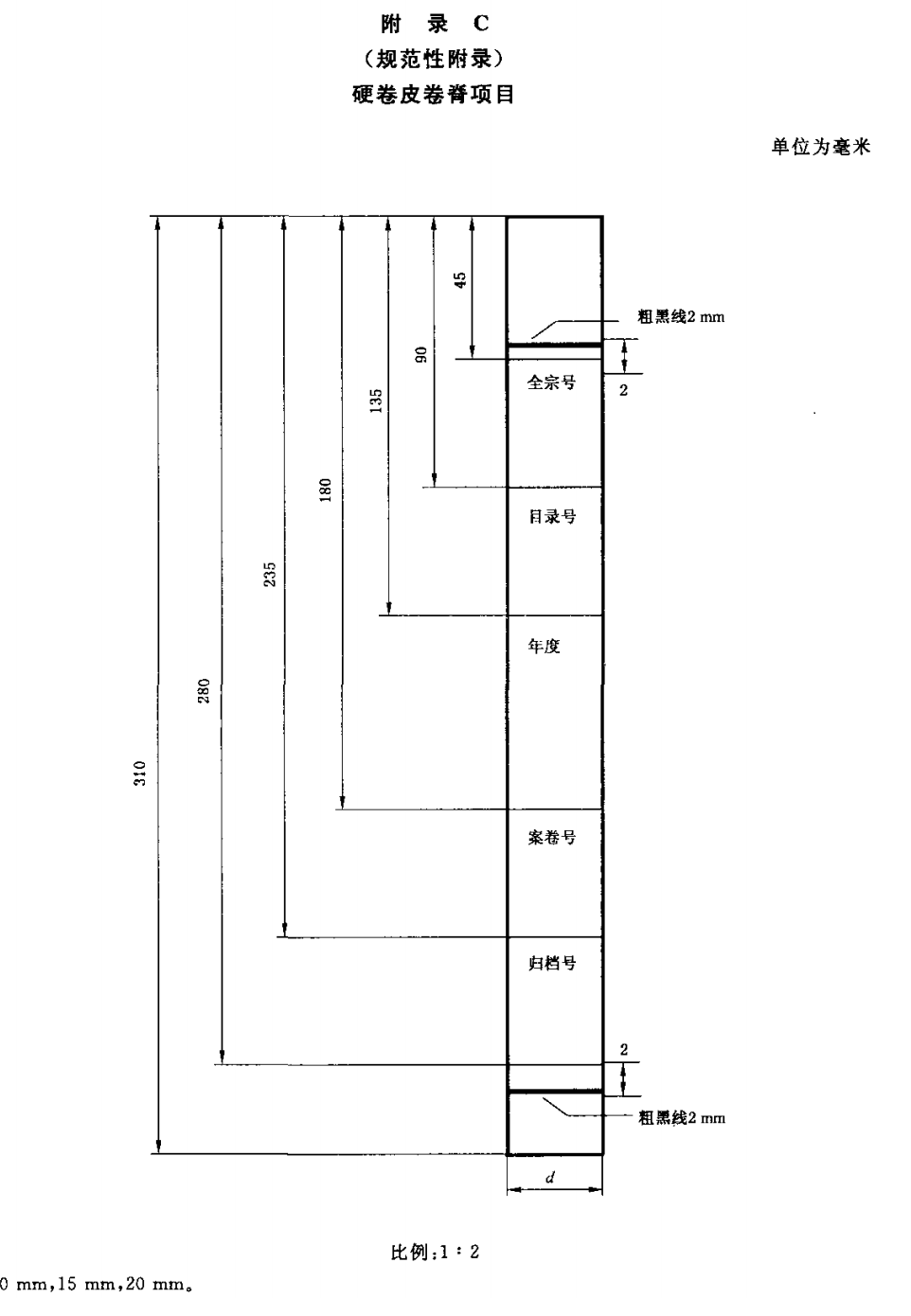
3.1.4 卷脊项目
卷脊项目包括:全宗号、目录号、年度、案卷号、归档号,其排列格式尺寸见附录C。
3.2 软卷皮格式
使用软卷皮装订的案卷,必须装入卷盒内保存。
3.2.1软卷皮外形尺寸
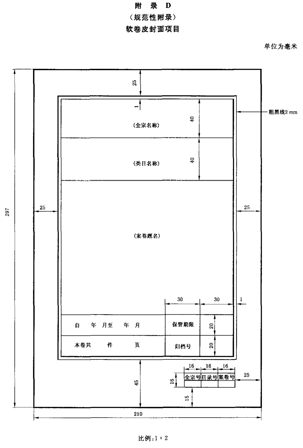
软卷皮设封皮和封底,其封皮和封底采用长宽为297mm×210mm的规格见附录D。
3.2.2 软卷皮封面项目
软卷皮封面项目及填写方法均同硬卷皮格式。封面项目尺寸、位置见附录D。
3.2.3 软卷皮封二项目
软卷皮封二项目包括:顺序号、文号、责任者、题名、日期、页号、备注。各项目具体位置、尺寸见附录E。
软卷皮封二项目的填写方法同4.4卷内文件目录填写方法。
3.2.4 软卷皮封三项目
软卷皮封三项目包括:本卷情况说明、立卷人、检查人、立卷时间,其尺寸位置见附录J。
软卷皮封三项目的填写方法同5.3卷内备考表填写方法。
3.3 卷盒规格
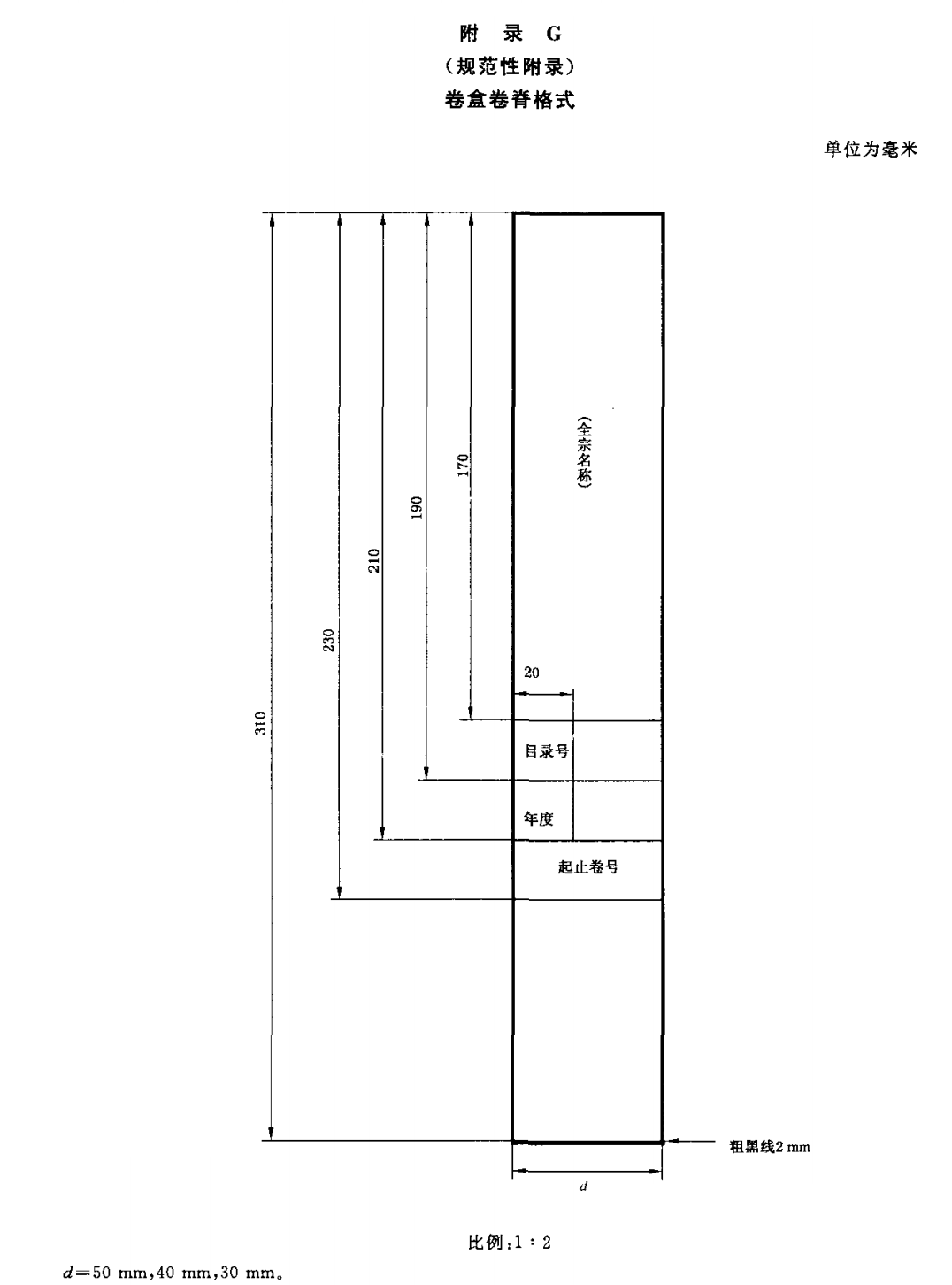
3.3.1 卷盒外形尺寸
采用310mm×220mm(长×宽),其厚度可根据需要分别设置30mm、40mm或50mm的规格。在盒盖翻口处中部要设置绳带,使盒盖能紧扣住卷盒(见附录F 图F.1、图F.2、图F.3)。
3.3.2 卷盒封面和卷脊格式
卷盒封面为空白面。
卷脊项目包括全宗名称、目录号、年度、起止卷号。
其中起止卷号填写××-××卷,其余项目的填写方法同硬卷皮格式。各项目具体位置、尺寸见附录G。
3.4 填写要求
填写案卷封面及卷脊时应使用符合耐久性要求的字迹材料,字迹工整。
4 卷内文件目录格式
4.1 目录用纸幅面尺寸
采用国际标准A4型(即长×宽为297mm×210mm)。
4.2 页边与文字区尺寸
卷内目录用纸上白边(天头)宽(20±0.5)mm
卷内目录用纸下白边(地脚)宽(15±0.5)mm
卷内目录用纸左白边(订口)宽(25±0.5)mm
卷内目录用纸右白边(翻口)宽(15±0.5mm)(见附录H)
4.3 卷内文件目录项目
包括:顺序号、文号、责任者、题名、日期、页号、备注。各项目具体位置、尺寸见附录H。
4.4 卷内文件目录填写方法
4.4.1 顺序号:以卷内文件排列先后顺次填写的序号,亦即件号。
4.4.2 文号:文件制发机关的发文字号。
4.4.3 责任者:对档案内容进行创造或负有责任的团体和个人,亦即文件的署名者。
机关团体责任者可著录统一规范的通用简称,不得著录“本市”“本局” 。个人责任者一般只著录姓名,必要时在姓名后著录对档案负有责任的职务、职称或其他身份,并用“( )”表示。联合行文的责任者,应著录列于首位的责任者,立档单位本身是责任者的必须著录,两个责任者之间的间隔用“;”,被省略的责任者用“[等]”表示。
4.4.4 题名:即文件的标题应照实抄录。没有标题或标题不能说明文件内容的文件,应自拟标题,外加“[ ]”号。
4.4.5 日期:文件的形成时间。填写时可省略“年”、“月”、“日”字。时间以8位数字表示,其中前4位表示年,中间2位表示月,后2位表示日,月日不足两位的,前面补“0”。
4.4.6 页号:填写每件文件首页所对应的页号;最后一件文件,填写该件起止页号。卷内文件页号应从1开始编制通号。
4.4.7 单份装订的案卷应逐件加盖档号章。档号章的位置在每件文件首页上端空白处(见附录I)。
4.4.8 备注:留待对卷内文件变化时作说明之用。
5.卷内备考表格式
5.1 卷内备考表外形尺寸及页边与文字区尺寸
均同卷内目录(见附录J)。
5.2 卷内备考表项目
包括:本卷情况说明、立卷人、检查人、立卷时间。各项目具体位置、尺寸见附录J。
5.3 卷内备考表填写方法
5.3.1 本卷情况说明:填写卷内文件缺损、修改、补充、移出、销毁等情况。立卷后发生或发现的问题由有关的档案管理人员填写并签名、标注时间。
5.3.2 立卷人:由责任立卷者签名。
5.3.3 检查人:由案卷质量审核者签名。
5.3.4 立卷时间:立卷完成的日期。
6 案卷各部分的排列格式
6.1 使用硬卷皮组卷,无论装订与否,其案卷各部分的排列格式均是:
案卷封面—卷内文件目录—文件—备考表—封底。
6.2 使用软卷皮组卷,其案卷各部分按下列格式排列:
软卷封面(含卷内文件目录)—文件—封底(含备考表),以案卷号排列次序装入卷盒保存。












原文链接:https://std.samr.gov.cn/gb/search/gbDetailed?id=71F772D75D51D3A7E05397BE0A0AB82A